Torrevieja Immo

Torrevieja · Los balcones Bungalow · Nouvelle construction

259.000€

Torrevieja · Los balcones Bungalow · Nouvelle construction

La description

Les caractéristiques

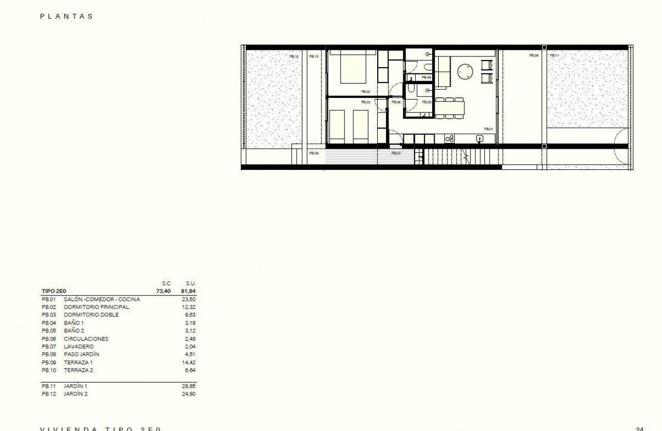
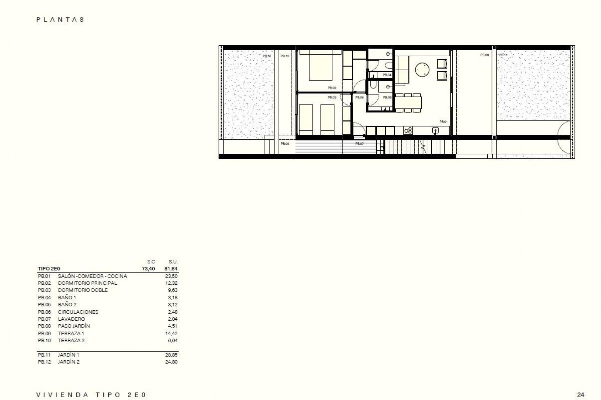
  • 81m2
  • 53m2
  • 2
  • 2
  • Oui
Chambres: 2
Salles de bain: 2
Construit: 81m2
Intrigue: 53m2
Piscine: Oui
Under-Build / Basement
Useable Build Space: 73 Msq.
Space
Storage / Trastero
Jardin
Piscine commune
Gated
Number of Parking Spaces: 1
Near Golf / Golf Resort Property
Air Conditioning: Pre-Installed
Beach: 3500 Meters
Near Schools
Near Commercial Center
Location: Coastal, Urbanisation
Double Bedrooms: 2
Terrace: 20 Msq.

Emplacement

Faites votre demande

Responsable del tratamiento: Centorre Inmo, SL, Finalidad del tratamiento: Gestión y control de los servicios ofrecidos a través de la página Web de Servicios inmobiliarios, Envío de información a traves de newsletter y otros, Legitimación: Por consentimiento, Destinatarios: No se cederan los datos, salvo para elaborar contabilidad, Derechos de las personas interesadas: Acceder, rectificar y suprimir los datos, solicitar la portabilidad de los mismos, oponerse altratamiento y solicitar la limitación de éste, Procedencia de los datos: El Propio interesado, Información Adicional: Puede consultarse la información adicional y detallada sobre protección de datos Aquí.
WhatsApp