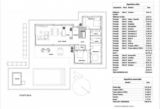
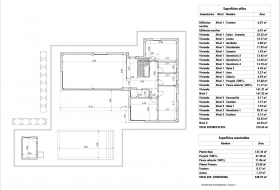
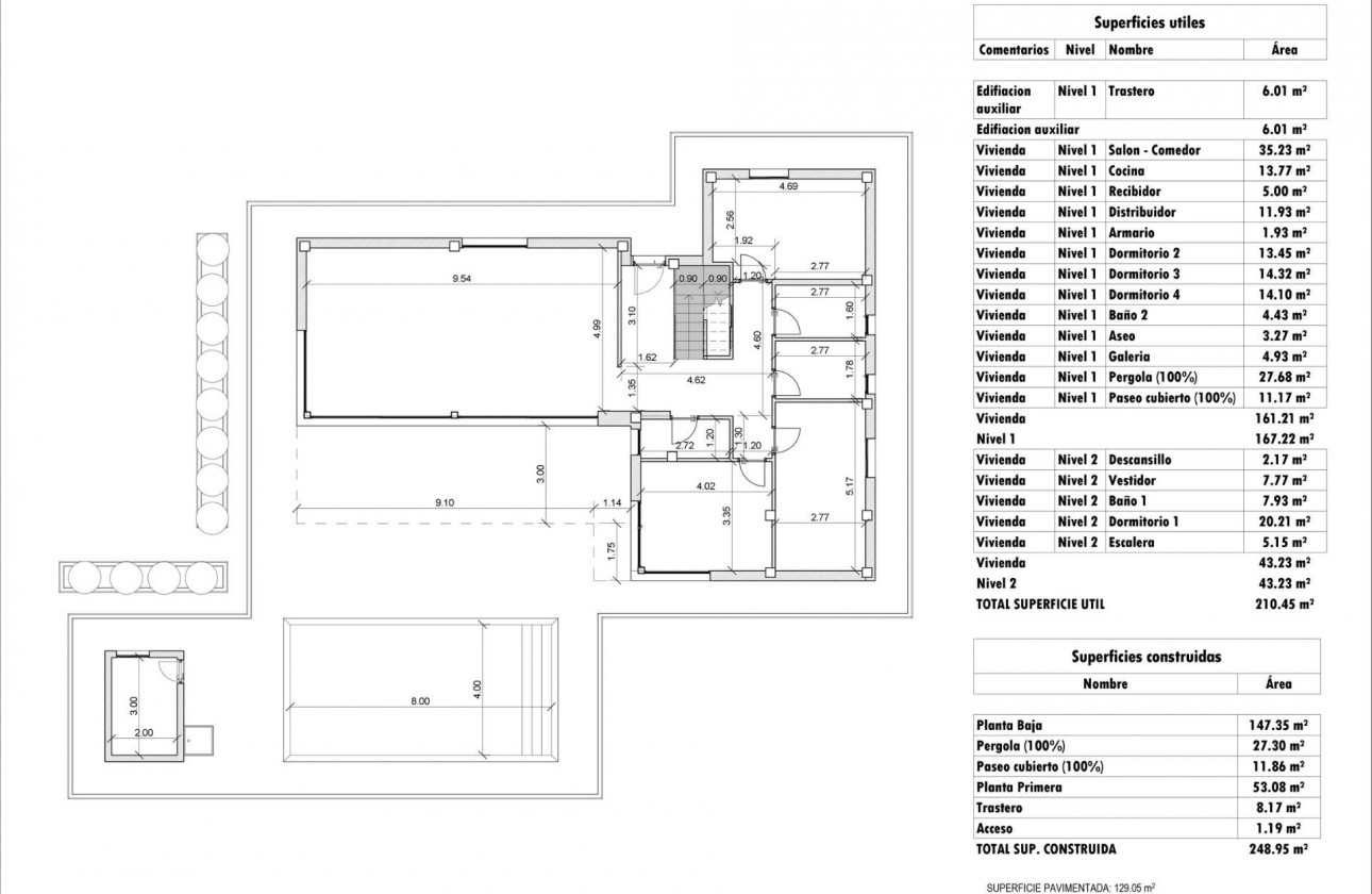
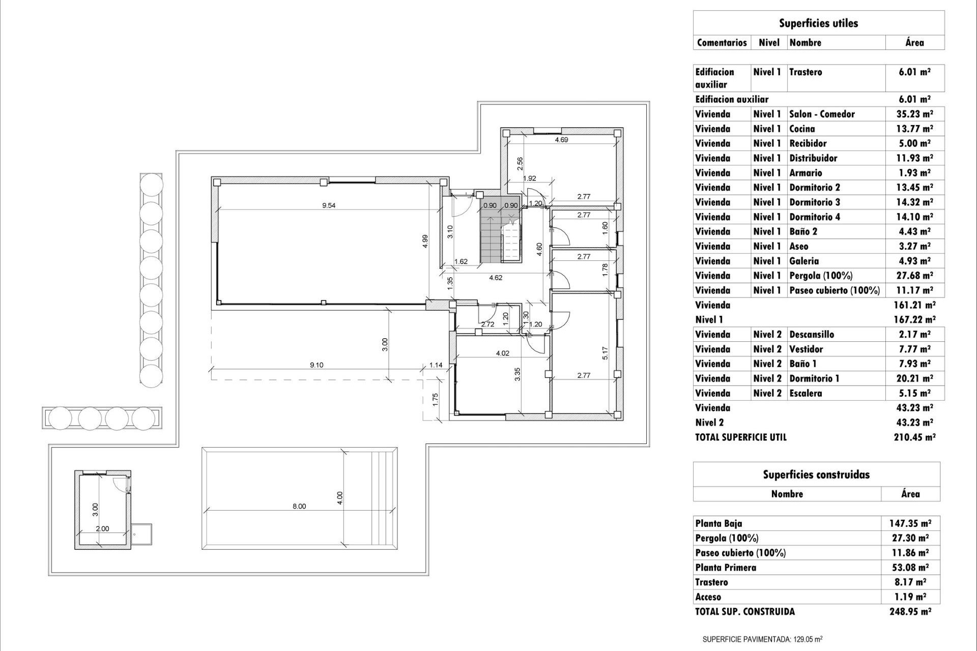
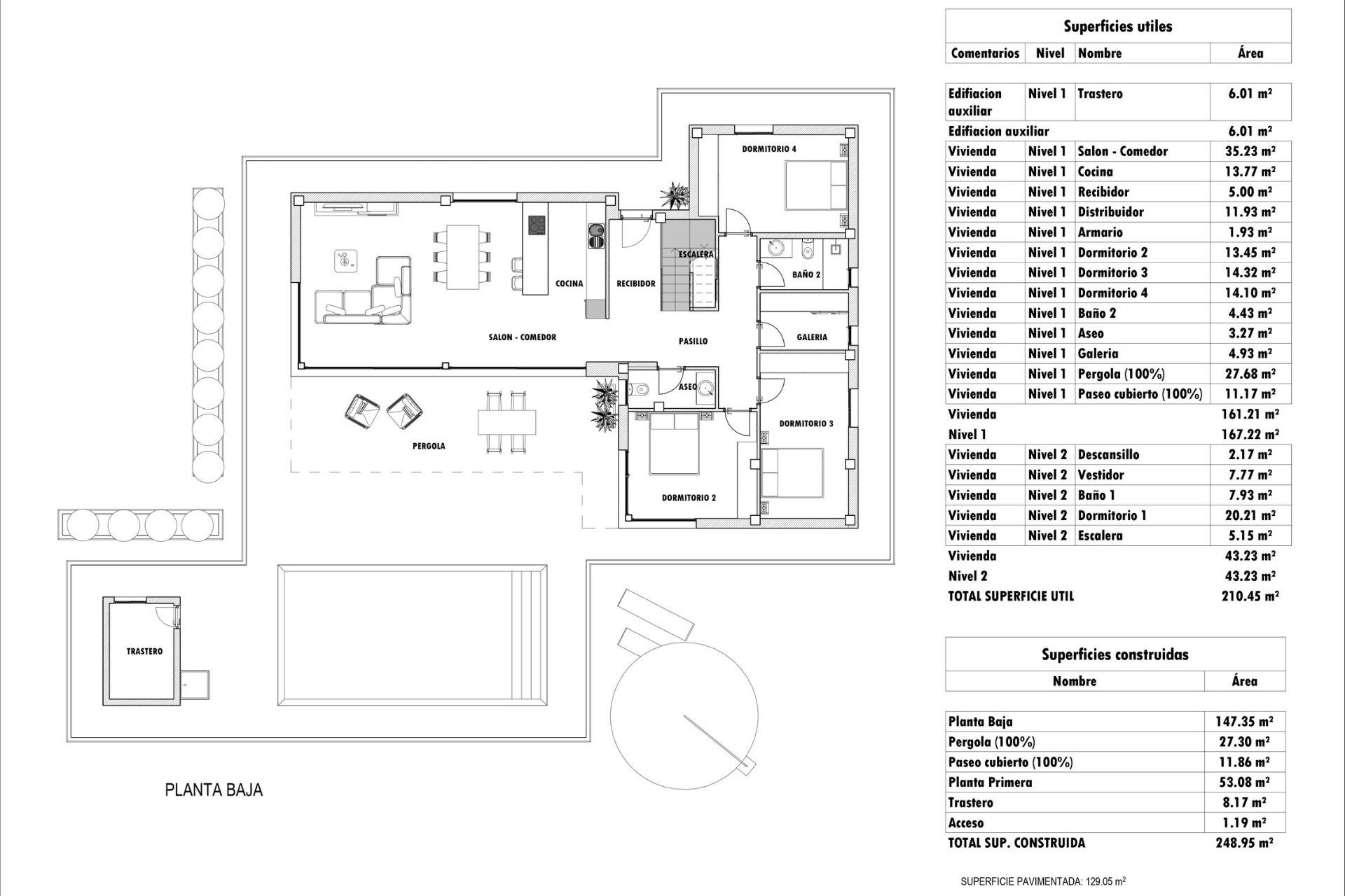
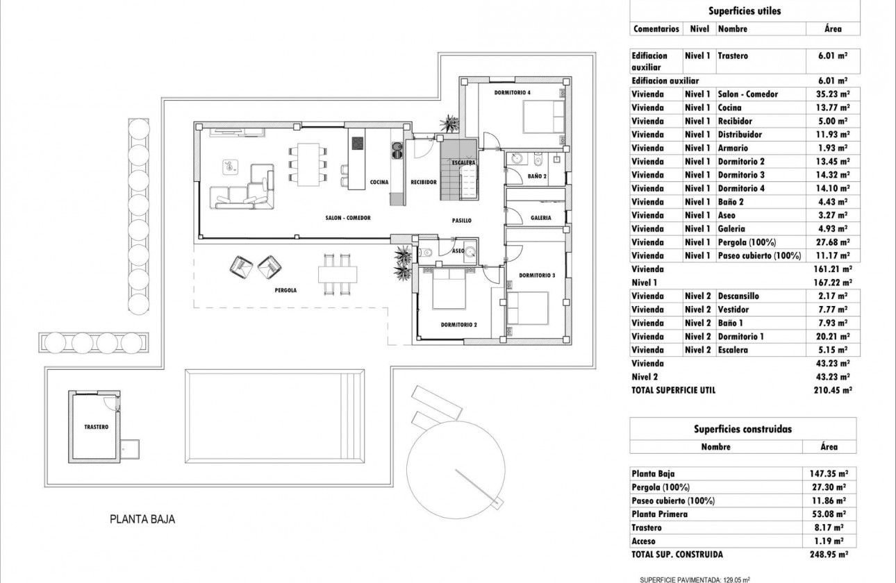
Villas neuves situées dans la commune d'Aspe. Villas neuves avec plusieurs modèles au choix, comprenant 2, 3 ou 4 chambres, sur un ou deux étages et construites avec dalle ou structure : le prix exact sera calculé en fonction du modèle et du terrain choisi. Toutes les villas sont construites sur des terrains rustiques de plus de 10 000 m2, dont environ 2 500 m2 seront clôturés. Les villas disposent d'une cuisine américaine avec salon, de placards intégrés, d'une piscine privée, d'un porche, d'un débarras et d'une place de parking extérieure. Plusieurs terrains sont disponibles, le prix a été calculé sur la base d'un terrain de 77 500 euros (si vous choisissez un autre terrain, la différence sera payée ou remboursée en fonction du prix de celui-ci). Réalisé en autopromotion, livraison dans un délai de 12 mois à compter de l'octroi du permis. Si vous recherchez un environnement calme, à proximité de villages typiques espagnols loin de la foule touristique, entouré de montagnes, avec un très grand terrain et à environ 30 minutes de la mer, cette maison est faite pour vous. Aspe est un village espagnol typique avec tous les services nécessaires à la vie quotidienne, entouré de montagnes et avec plusieurs sites naturels à proximité où vous pourrez faire des randonnées ou du VTT. Situé à 25 km de la plage, à 9 km d'Elche et à environ 20 km de l'aéroport d'Alicante.