Torrevieja Immo

Orihuela Costa · Playa Flamenca Appartement · Nouvelle construction

395.000€

Orihuela Costa · Playa Flamenca Appartement · Nouvelle construction

La description

Les caractéristiques

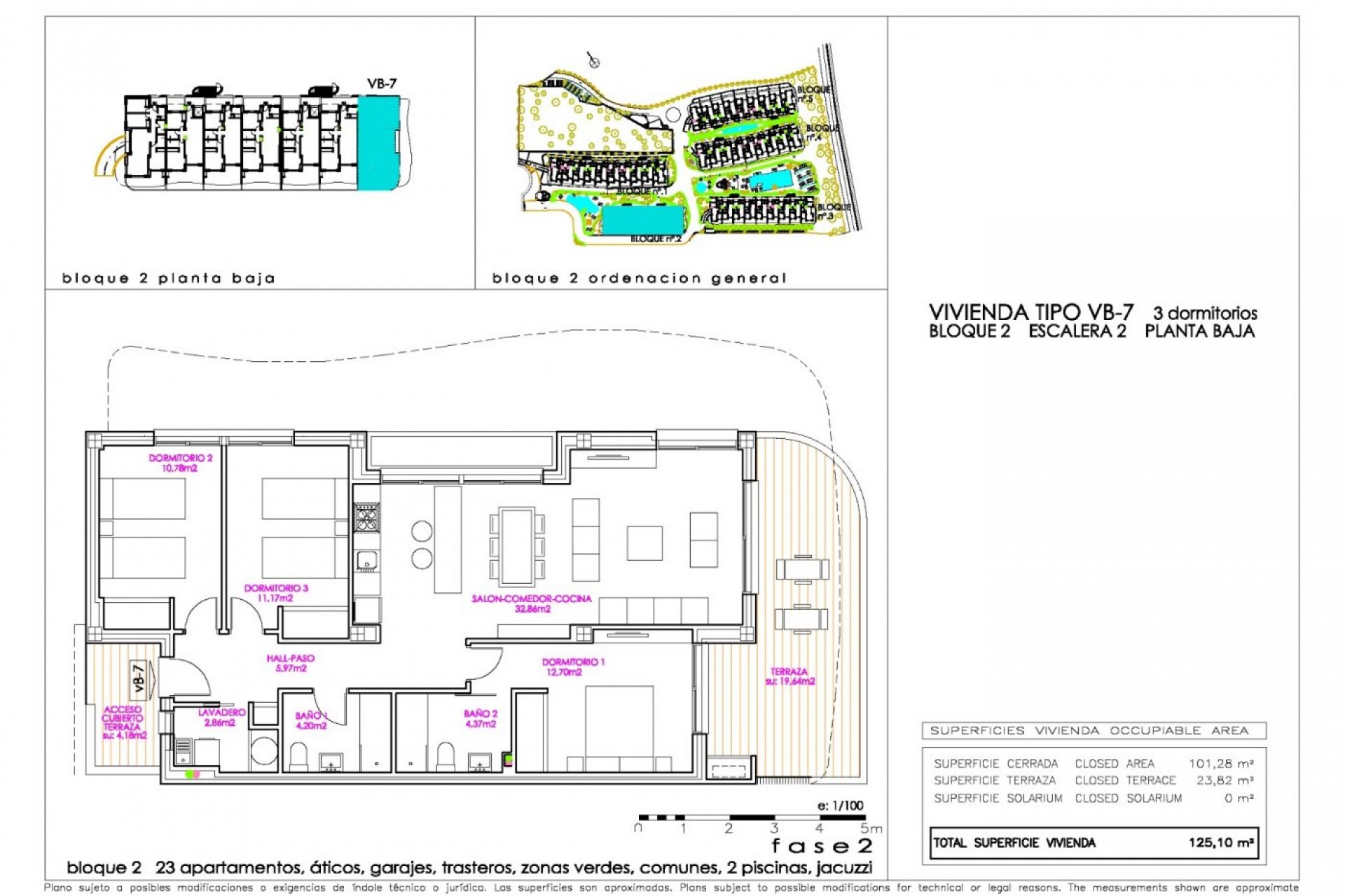
  • 99m2
  • 3
  • 2
  • Oui
Chambres: 3
Salles de bain: 2
Construit: 99m2
Piscine: Oui
Jardin
Piscine commune
Gated
Number of Parking Spaces: 1
Air Conditioning: Pre-Installed
Double Bedrooms: 3
Near Trees
Near Schools
Near Commercial Center
Near Bus Route
Location: Coastal, Urbanisation
Useable Build Space: 90 Msq.
Elevator/Lift
Beach: 500 Meters
Terrace: 21 Msq.
Parking - Space
Storage / Trastero

Emplacement

Faites votre demande

Responsable del tratamiento: Centorre Inmo, SL, Finalidad del tratamiento: Gestión y control de los servicios ofrecidos a través de la página Web de Servicios inmobiliarios, Envío de información a traves de newsletter y otros, Legitimación: Por consentimiento, Destinatarios: No se cederan los datos, salvo para elaborar contabilidad, Derechos de las personas interesadas: Acceder, rectificar y suprimir los datos, solicitar la portabilidad de los mismos, oponerse altratamiento y solicitar la limitación de éste, Procedencia de los datos: El Propio interesado, Información Adicional: Puede consultarse la información adicional y detallada sobre protección de datos Aquí.
WhatsApp