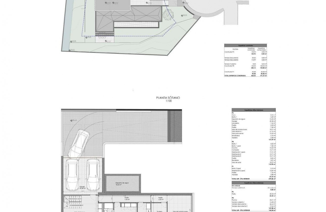
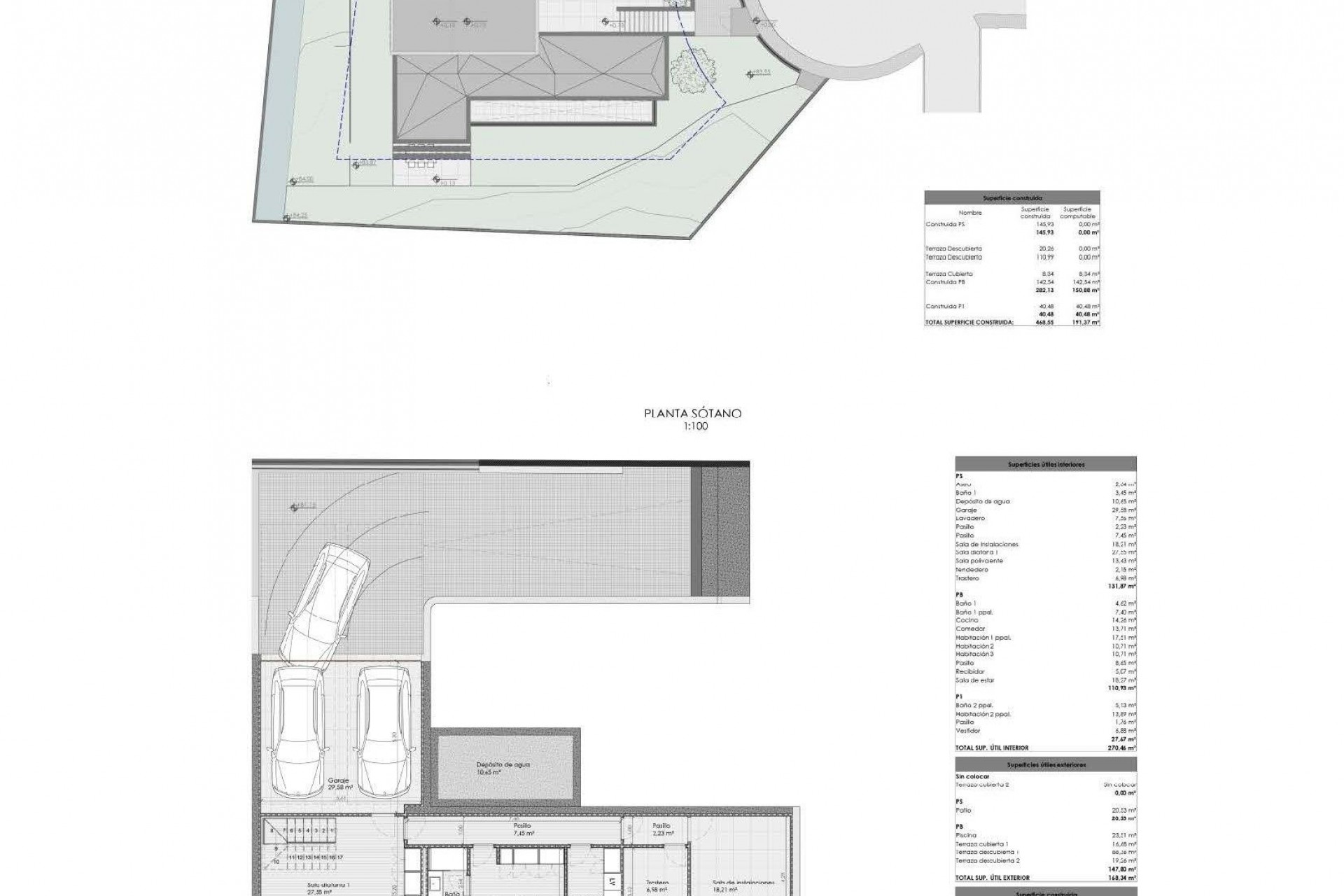
Villa moderne neuve avec équipements de luxe à Javea Un style de vie méditerranéen contemporain sur la Costa Blanca Cette superbe villa individuelle neuve à Javea combine des finitions de haute qualité, un design élégant et une fonctionnalité optimale sur trois niveaux spacieux. Située dans l'une des villes côtières les plus prisées de la Costa Blanca Nord, la propriété offre un environnement résidentiel paisible, entouré de montagnes verdoyantes, de parcs naturels et de belles plages. Javea est réputée pour ses eaux cristallines, sa gastronomie traditionnelle et son style de vie méditerranéen, ce qui en fait un endroit idéal pour y vivre à l'année ou pour investir. Sous-sol spacieux conçu pour être polyvalent Le sous-sol est conçu de manière réfléchie pour répondre aux besoins du mode de vie moderne. Il comprend un garage ouvert pour deux voitures, une salle de bains, des toilettes pour invités, une pièce ouverte, une salle polyvalente et un patio qui apporte de la lumière naturelle à l'espace. Cet étage offre des possibilités infinies, que vous envisagiez d'y installer une salle de sport, une salle de divertissement, un bureau ou une suite pour les invités. Rez-de-chaussée élégant avec espaces de vie communicants Le rez-de-chaussée comprend un salon-salle à manger lumineux qui s'intègre parfaitement à la cuisine entièrement équipée, créant un espace idéal pour les réunions de famille. Un hall d'entrée, des toilettes pour invités et des couloirs ajoutent à la fonctionnalité et à la fluidité. Ce niveau comprend deux chambres confortables partageant une salle de bains moderne et une chambre principale spacieuse avec salle de bains attenante, offrant intimité et confort. Suite parentale luxueuse à l'étage supérieur L'étage supérieur est dédié à une deuxième chambre principale, offrant un refuge exclusif avec sa propre salle de bains, son dressing et son couloir. Cet espace privé garantit confort et tranquillité avec une vue magnifique sur les paysages verdoyants environnants. Un espace extérieur conçu pour le climat méditerranéen Les espaces extérieurs de la propriété sont conçus pour profiter de la vie en plein air tout au long de l'année. Ils comprennent deux terrasses couvertes et deux terrasses découvertes au rez-de-chaussée. L'une des terrasses couvertes entoure la piscine, parfaite pour se détendre en été, tandis que la terrasse non couverte à côté de la cuisine est idéale pour les repas et les réunions en plein air. Équipée d'un chauffage au sol et d'une climatisation centralisée, la villa garantit un confort optimal en toute saison. Emplacement privilégié à Javea Plage d'El Arenal à 3 km Port et marina de Javea à 7 km Club de golf de Javea à 3 km Aéroport d'Alicante 100 km Aéroport de Valence 125 km Votre maison méditerranéenne vous attend Que vous recherchiez une résidence de luxe, une maison de vacances ou un investissement sûr à long terme, cette villa offre un style de vie exceptionnel à Javea. Contactez-nous dès aujourd'hui pour organiser une visite et découvrir votre future maison sur la Costa Blanca.